levent ozden design studio
news
profiles
projects
contact
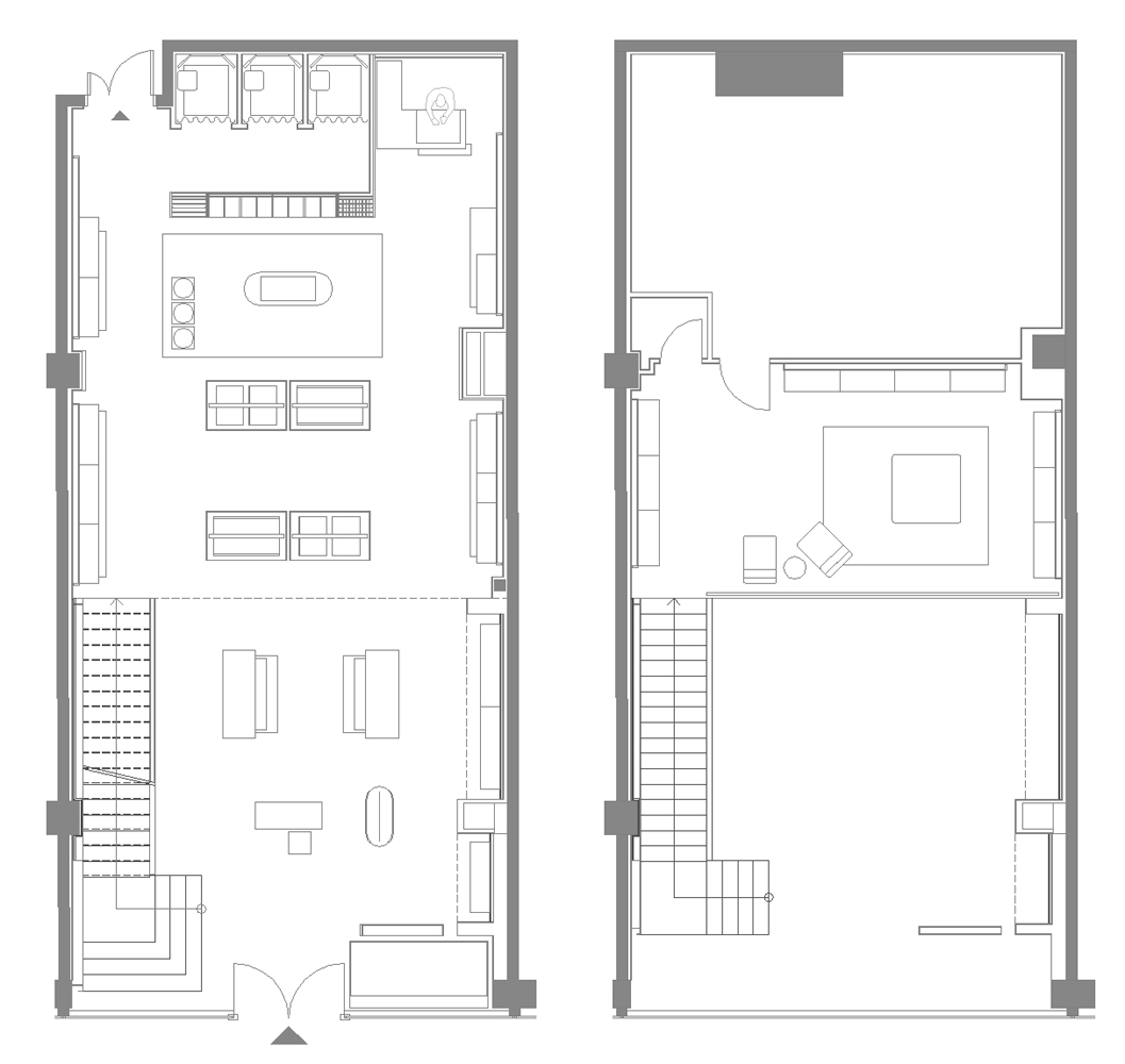
Project year : 2018
Principal use : Men's clothing store
Total floor area : 230 m2.
Location : Galleria Mall, St.Petersburg, Russia
Back To All Project