levent ozden design studio
news
profiles
projects
contact
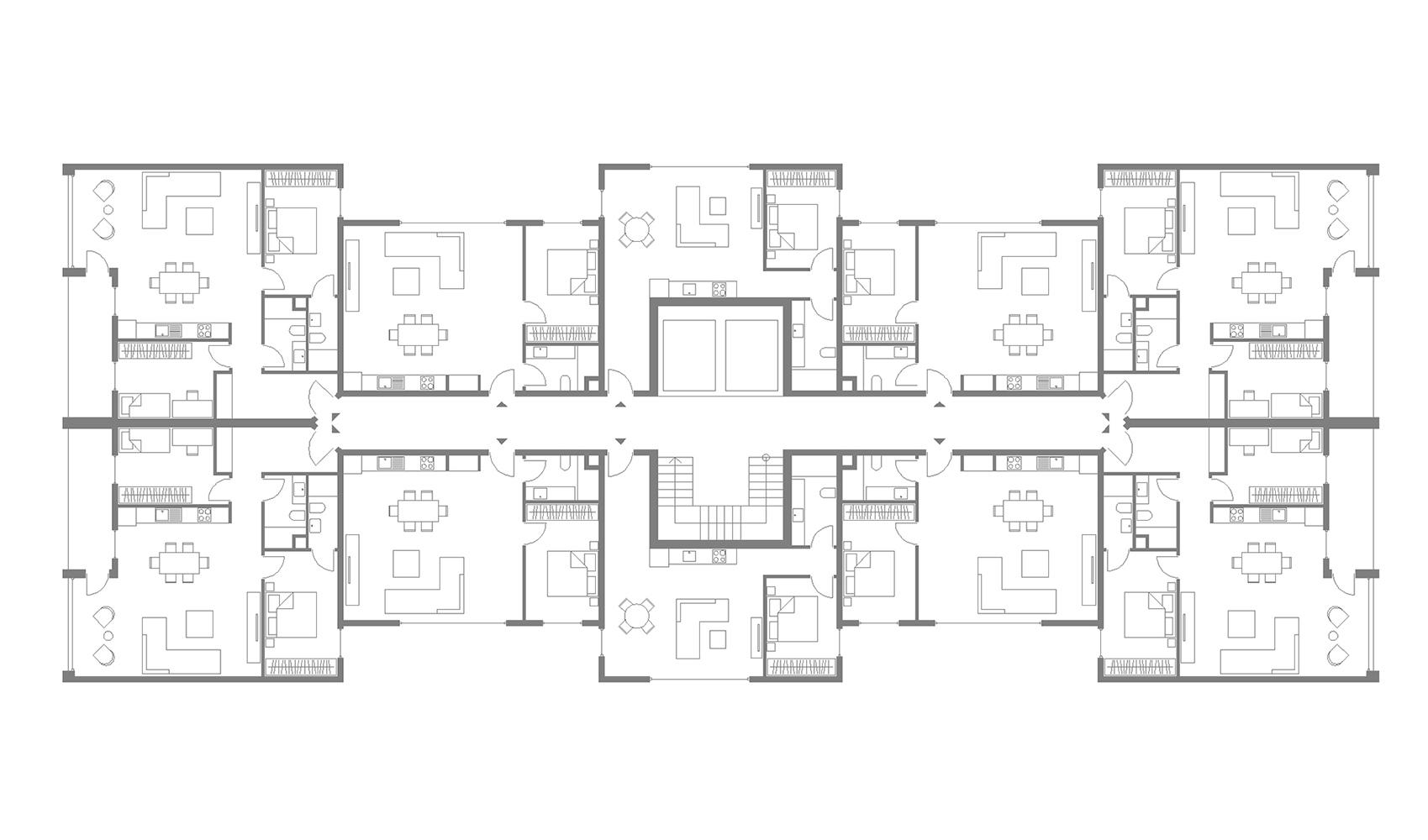
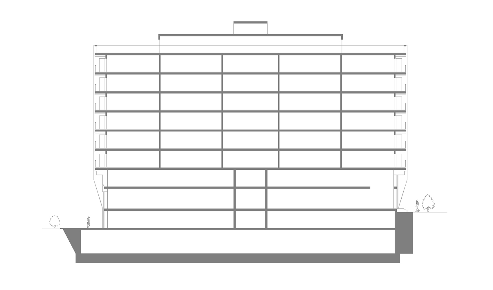
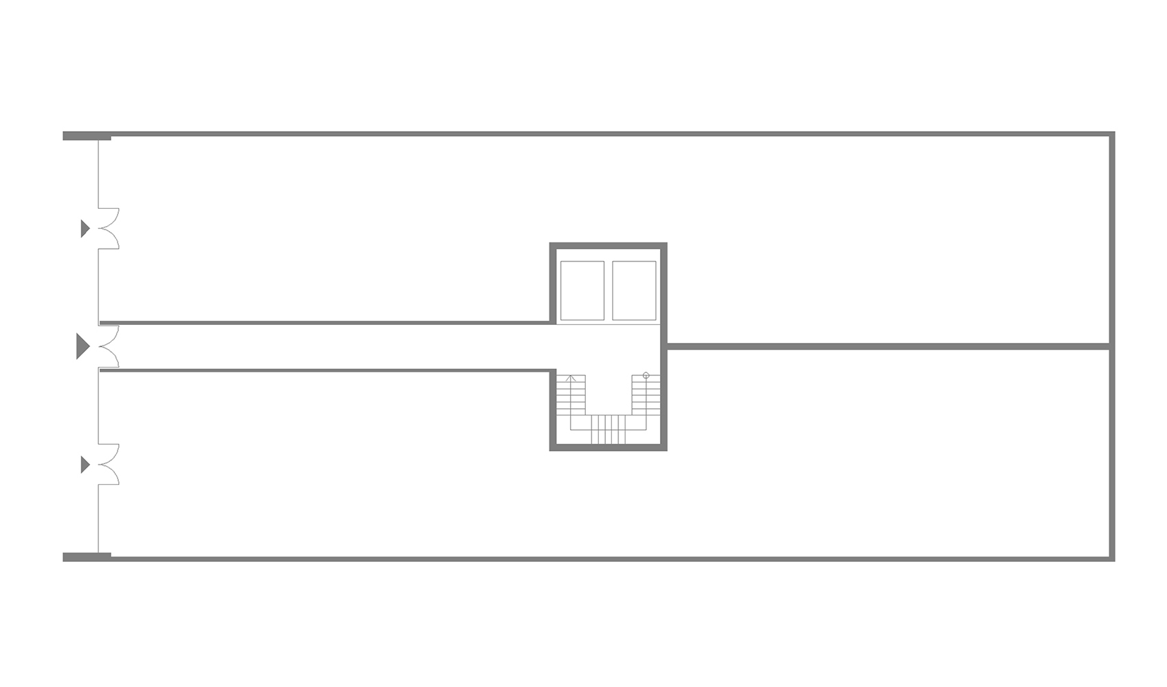
Project year : 2017
Principal use : Apartment building
Total floor area : 9000 m2.
Location : Muş, Turkey
Construction : Dova İnş. ve Taah. Tic. A.Ş.
Back To All Project