levent ozden design studio
news
profiles
projects
contact
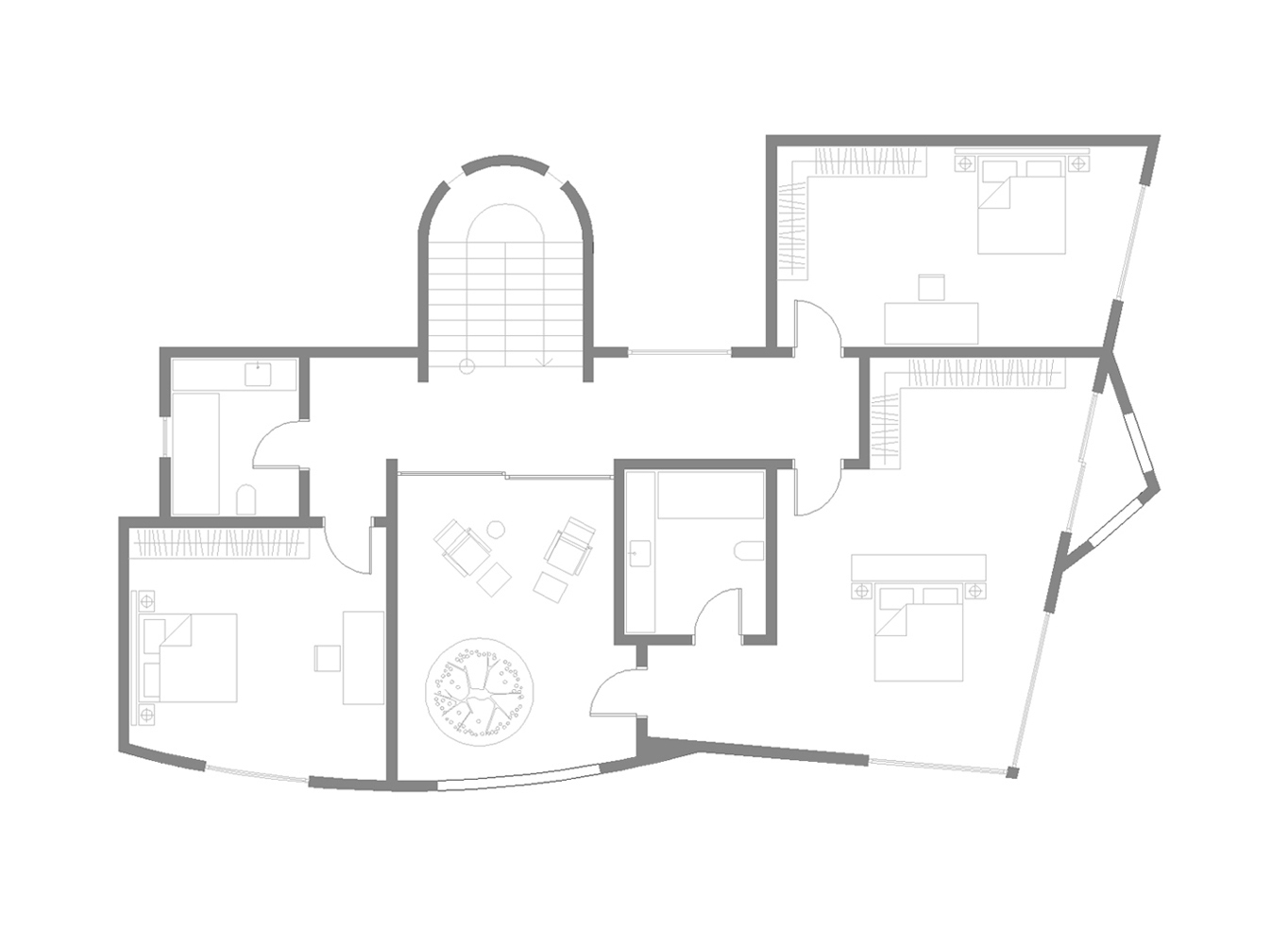
Project year : 2012
Principal use : Dogan house
Total floor area : 450 m2.
Location : Famagusta, North Cyprus
Back To All Project