levent ozden design studio
news
profiles
projects
contact
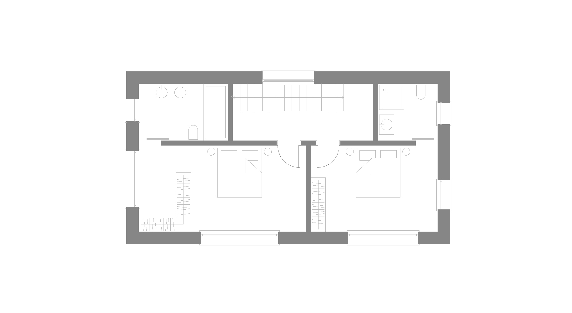
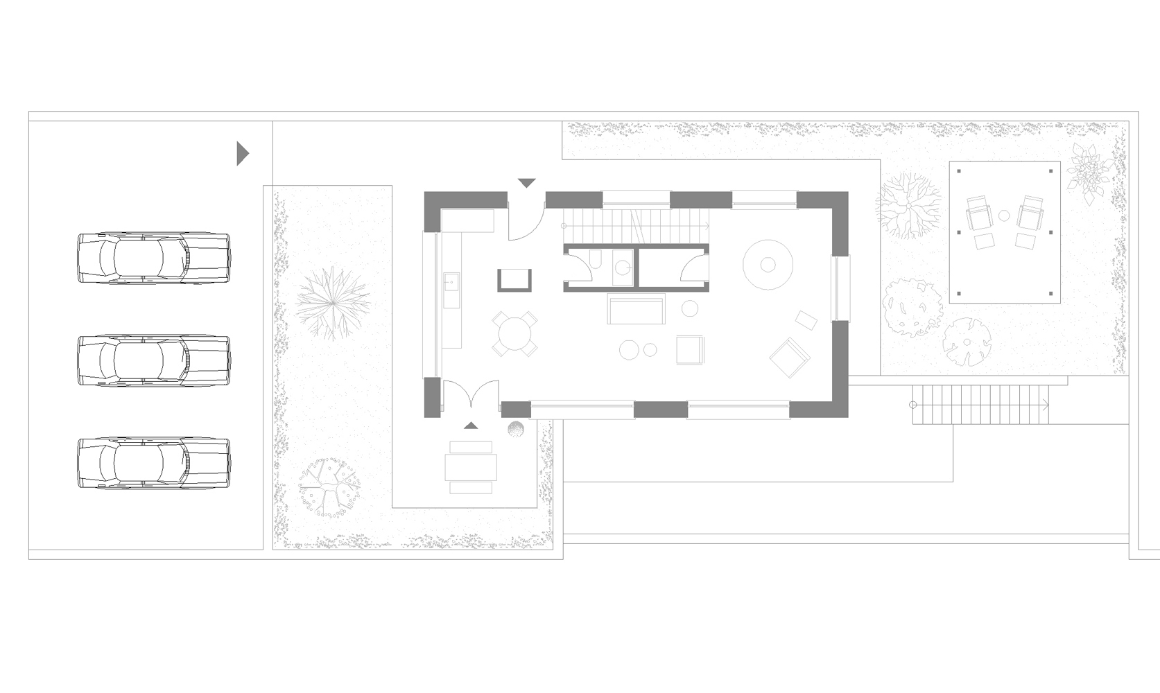
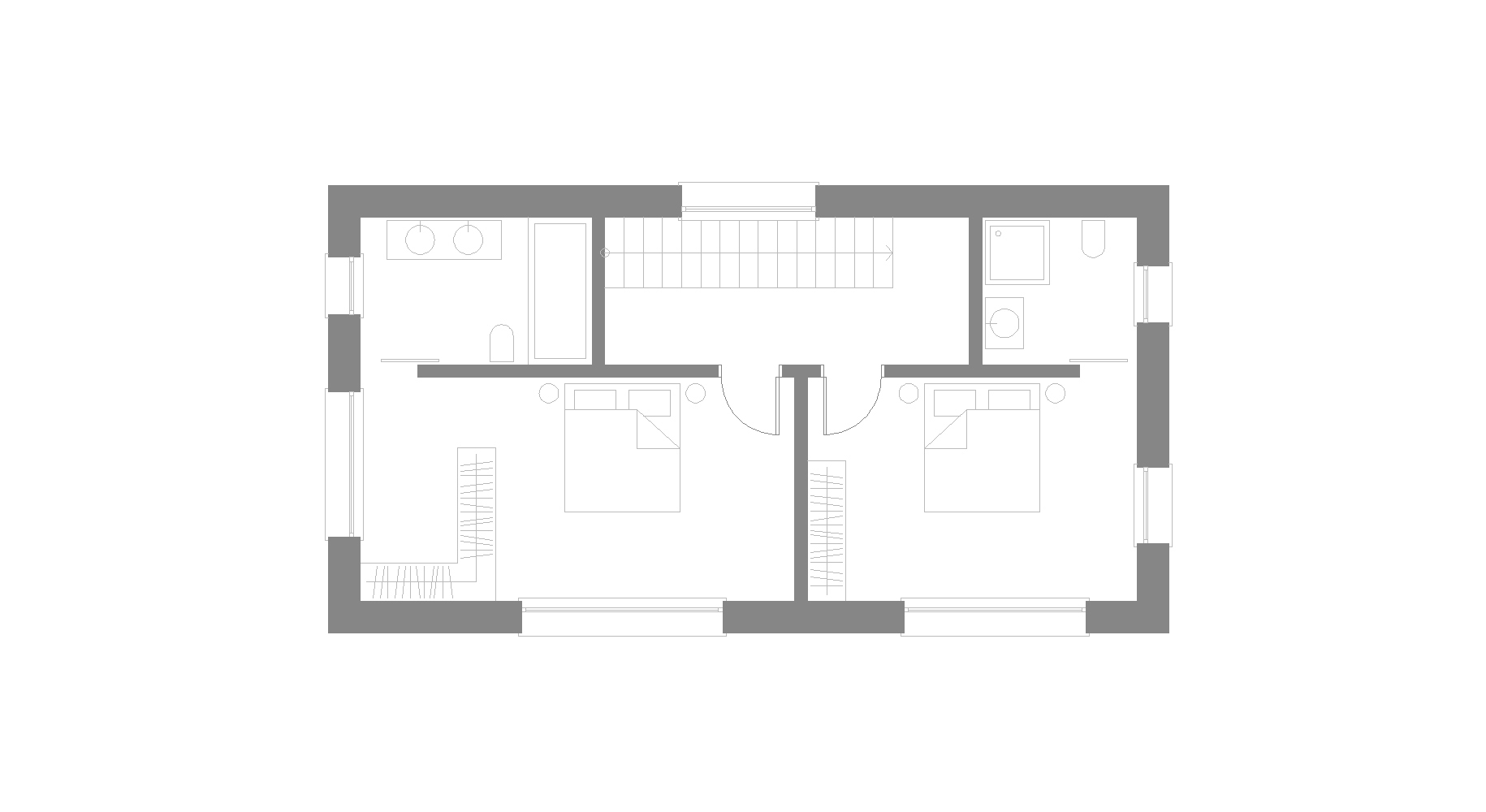
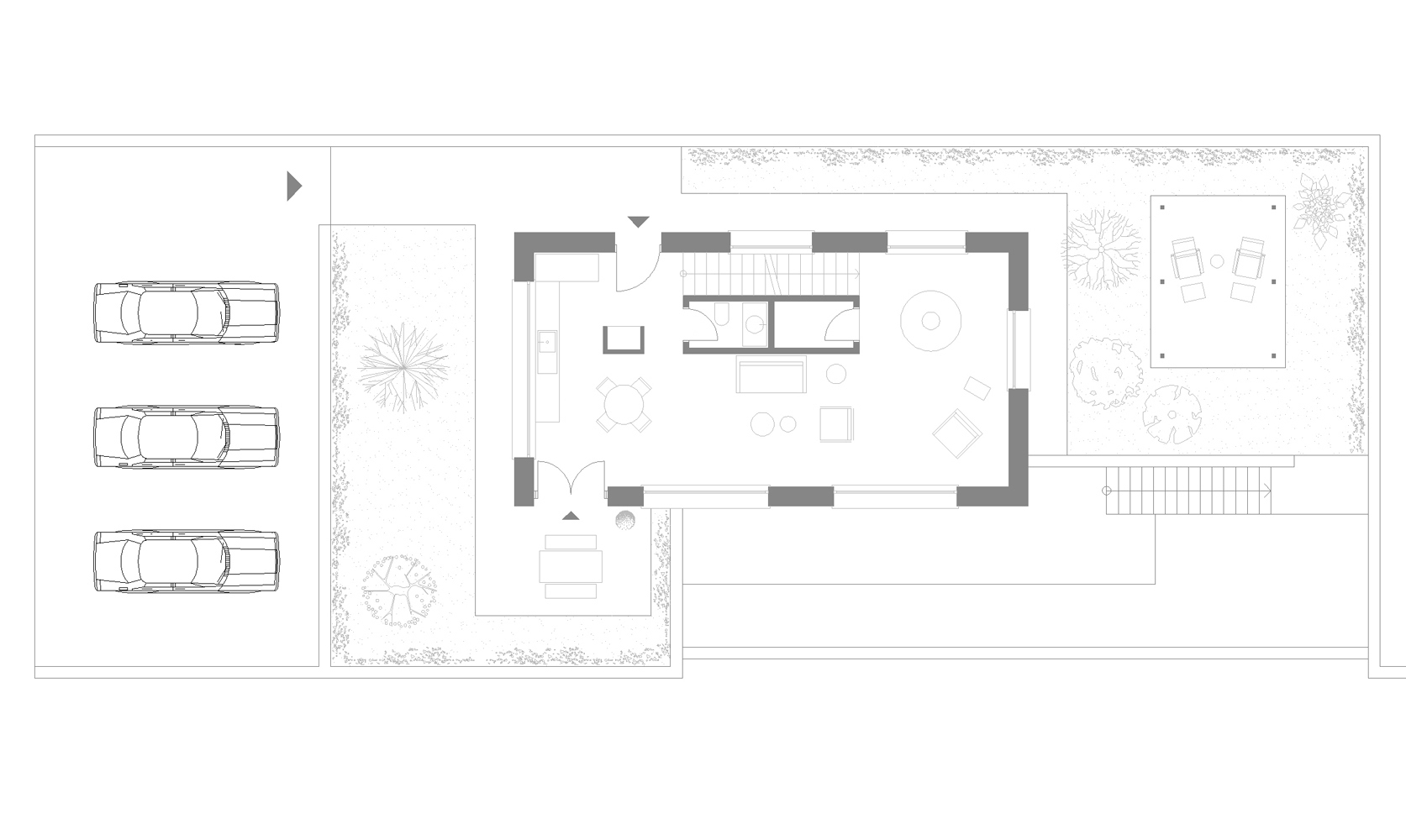
Project year : 2021
Principal use : Private House
Total floor area : 550 m2.
Location : Urla, Izmir, Turkey
Back To All Project