levent ozden design studio
news
profiles
projects
contact
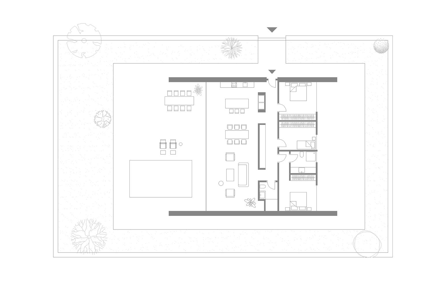
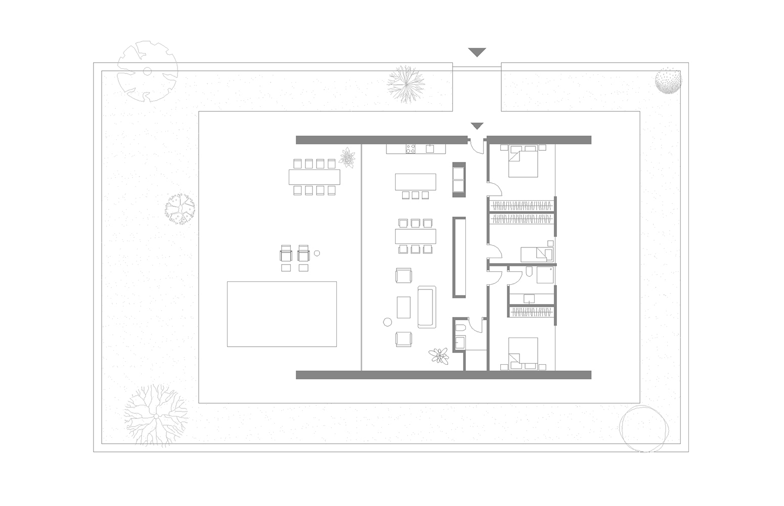
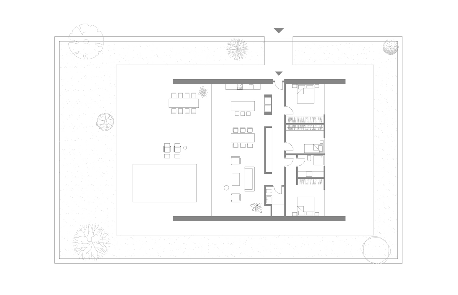
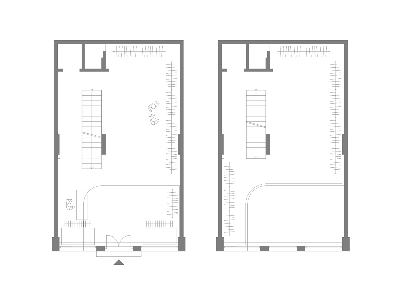
Project year : 2024
Principle use : Private house
Total floor area : 280 m2.
Location : Urla, Izmir, Turkey
Back To All Project